THE LINCOLN APARTMENT

Three-bedroom apartment on Level 7 of the Palais Kraft main building.

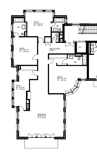
Floor Plan of the Lincoln Apartment
1/1

DESCRIPTION

The Lincoln Apartment occupies the right wing of Level 7 of the Palais Kraft main building.

Beautifully presented throughout, the apartment focuses on a spacious, living / dining room. The master bedroom suite comprises a master bedroom plus a master bathroom with shower, and closets. Two secondary bedrooms with attached bathrooms plus guest toilet, living / dining room with fireplace, large kitchen, hall. High ceilings (3 meters). Perfect for entertaining and gracious living.

The Lincoln Apartment of the Palais Kraft in Zurich, Switzerland

This website is using cookies to improve the user-friendliness. You agree by using the website further.

Privacy policy